木造2階建てにお住いのM様より、1階のリフォームのご相談をいただき弊社でリフォームさせていただきました。
間取変更、住宅設備交換(キッチン・洗面台・トイレ)、窓交換、建具交換(玄関ドア・室内ドア)、各所内装など施工いたしました。今回はその中から1階室内ドア交換をご紹介いたします。

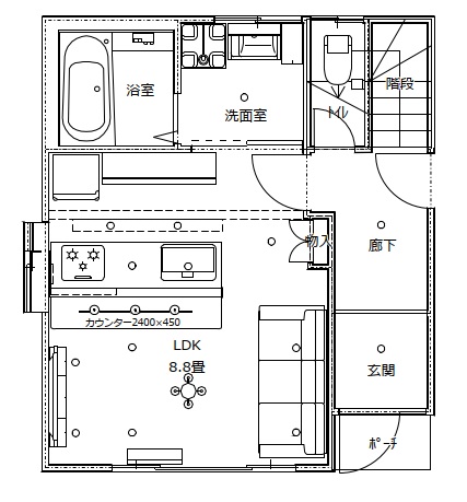
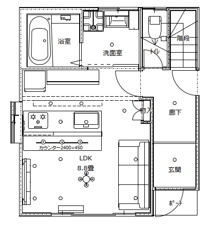
| リフォーム部位 | 1階LDK、洗面室、収納 |
|---|---|
| 建物種別 | 戸建て |
■LDK
・入口はドア位置を変更したため枠ごと交換しました。
・新しく造付け収納を作り、目隠し用に両開き扉を設置しました。
■洗面脱衣室
・入口は開きドアから使いやすい上吊り引き戸に交換しました。
建具はパナソニック ベリティスシリーズをおすすめいたしました。デザインや各パーツの豊富さからクラフトレーベルをお選びいただきました。
古い室内から新しい室内に生まれ変わることができて大満足しています!
間取を変更したことでLDKから直接洗面室・浴室へ行けるようになりとても便利になりました!
OKユリシーズ44さんにお願いして本当に良かったと思っています!
また何か相談ががある時には是非お願いしたいです!
Before

リフォーム前は廊下から別のドアで出入りしていたため壁で塞がれていました。
After

壁を解体し新しく開き戸を取付け。扉はブルーグレーオーク柄です。人気のグレイッシュカラーでシックで大人な雰囲気になりました。
右側はトイレ入口。LDKからすぐにトイレにも行けるのでお子様も安心です。
Before

以前はこちらのドアから出入りしていました。
After

ドアを壁で塞ぎ、新しく収納を造作。扉はドアと同じブルーグレーオーク柄です。
Before

洗面室内から廊下への開き戸。
LDKから一度廊下へ回って洗面室へ行くので、動線が長くなっていました。
After

上吊り引き戸に交換。LDKから直接洗面室・浴室へ行けるので、手洗いやお風呂へのアクセスも良くなりました。キッチンにいても手洗いや入浴中のお子様も見守れて安心です。

DKからトイレや洗面室、浴室までは一度廊下を通らなければいけませんでした。

ドア位置を変更し収納を造作。トイレ、洗面室へ行きやすくなりました。

パナソニック ベリティス
■シリーズ:Craft Label
■デザイン:
LDK入口:LJ型
LDK収納:PA型
洗面脱衣室入口:MF型
■扉・枠色:ブルーグレーオーク柄
■ハンドル・取っ手・蝶番:真鍮色
■採光部:カスミ熱処理ガラス
弊社ではスタンダードレーベルをおすすめしておりますが、クラフトレーベルならデザイン・柄・採光部など自由にアレンジ・カスタマイズできます。